Te Roropipi

Client
Mana Ahuriri Hāpai Ltd & New Ground Capital
Date
2023 - Present
Category
Housing
Masterplanning
Te Roropipi Banner Image
Te Roropipi Feature Image 1

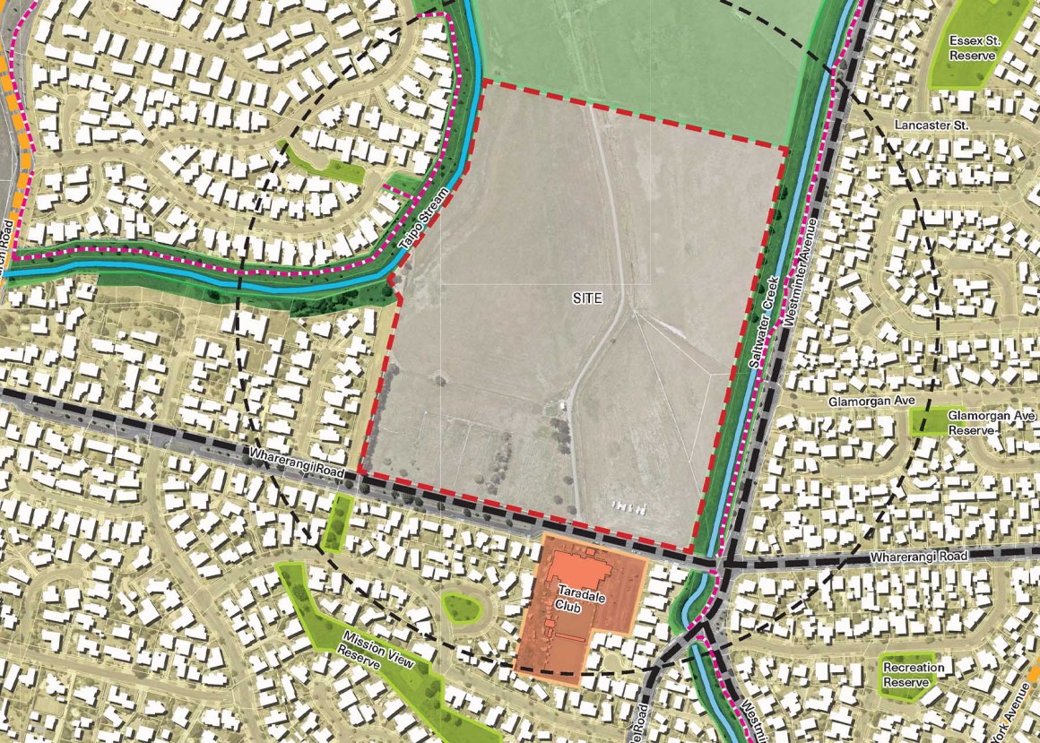
Reset provided specialist urban design and landscape architectural services for the Te Roropipi development in Napier, on a large block of land from treaty settlements. The development for Mana Ahuriri Holdings Limited sought Resource Consent to subdivide and develop the 17.6ha site providing a mix of suburban residential lots and medium density super lots along with a designated commercial area. Riparian margins, waterway setbacks, public open spaces and stormwater treatment facilities will be provided and integrated into the development.

A stormwater park is proposed in a central location within the site, with frontages to both the proposed primary road and Saltwater Creek/Westminster Avenue. A linear neighbourhood park is configured along the western edge of the stormwater park providing a natural play area, a communal picnic area and seating over a timber deck that extends from the park’s edge to the central stormwater basin.

Landscape design has been developed to provide for quality streetscape and open space and a high level of residential amenity. Native trees and low plants complemented with exotic specimen trees are proposed alongside the proposed roads. The riparian margin of the adjacent Taipo Stream (to be vested) will be revegetated and enhanced by the provision of a range of native species.

Reset was extensively involved in the design process including reviewing the initial design concept, undertaking design iterations, collaborating with stakeholders and mana whenua, and generating relevant technical reports. Reset undertook the site master planning, yield studies, urban design assessment, landscape design and landscape and visual effects assessment

 

Services
Site Master Planning, Yield Studies, Urban Design Assessment, Landscape Design, Landscape and Visual Effects Assessment, Detailed Design.

Team
New Ground Capital, Infir